Departamentos Puertecito
2024
"El Puertecito",
Santa María Colotepec, Oaxaca.


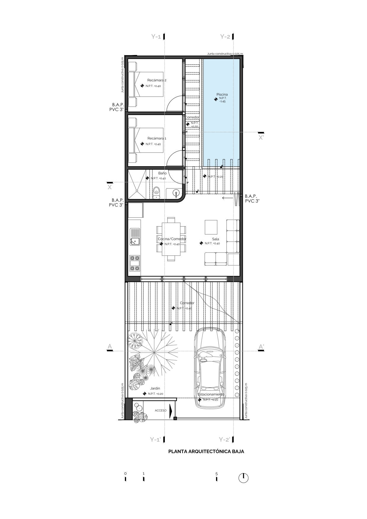
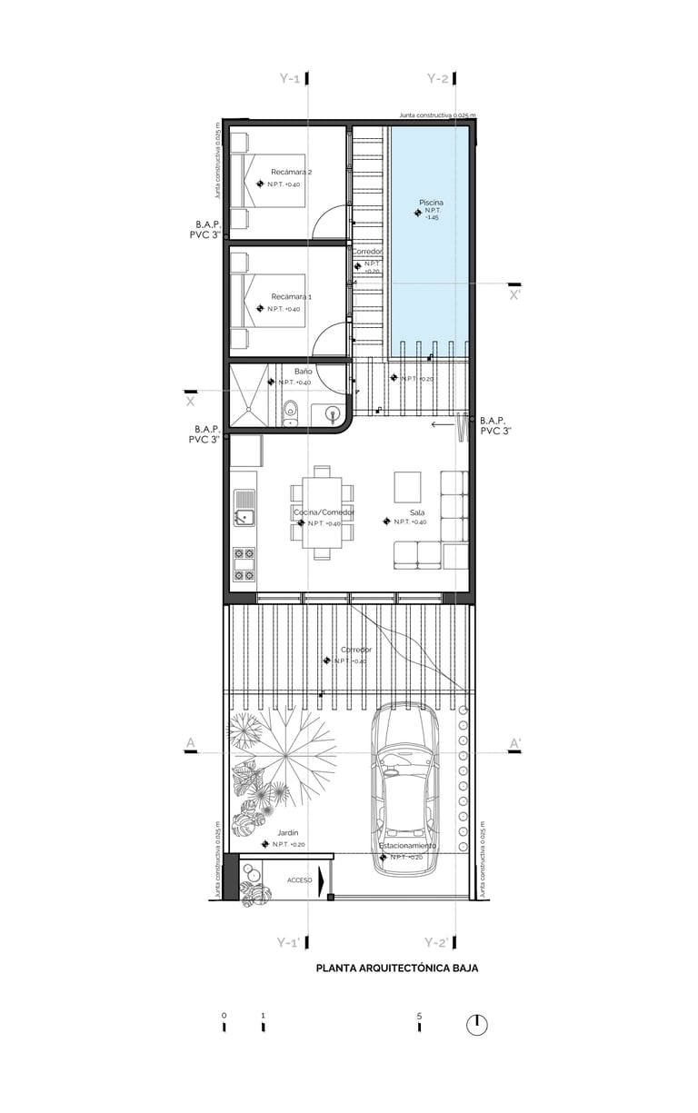
Este proyecto de departamentos en "El Puertecito" Oaxaca, está concebido en una sola planta que privilegia la amplitud y la frescura de los espacios abiertos. La propuesta arquitectónica integra materiales de la región, aportando identidad y armonía con el entorno costero.


Gracias a su diseño con ventilación cruzada, cada ambiente se mantiene naturalmente iluminado y ventilado,
A pesar de desarrollarse en un terreno reducido, el proyecto logra una óptima distribución que aprovecha cada metro disponible. La organización de los espacios responde a un esquema funcional, donde las áreas comunes y privadas se integran de manera fluida.


Galería del proyecto












Como elemento central, una alberca interior ofrece un espacio de relajación y convivencia en perfecta sintonía con el estilo de vida de playa.




