Casa San Sebastián
2025
San Sebastián Tutla, Oaxaca.


El proyecto está diseñado para una familia que busca un hogar moderno y elegante, mantieniendo a su vez un ambiente acogedor.













La paleta de colores en negro, blanco y gris aporta un carácter sofisticado y atemporal, ideal para resaltar la pureza de las formas arquitectónicas y ofrecer ambientes amplios y luminosos.
Estos tonos se equilibran con la calidez de tonos naturales proporcionados por lambrín WPC en la terraza que convive con el amplio jardín de la vivienda, lo cual añade una sensación hogareña perfecta para compartir momentos en familia.


El resultado es una combinación que no solo embellece la vivienda, sino que también responde a las necesidades de quienes la habitarán: un matrimonio que busca un espacio elegante y funcional, así como a sus dos pequeñas hijas, que disfrutarán de un entorno armónico y confortable.




















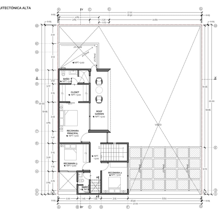
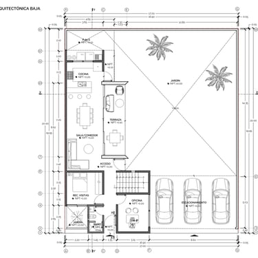
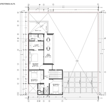
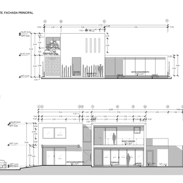
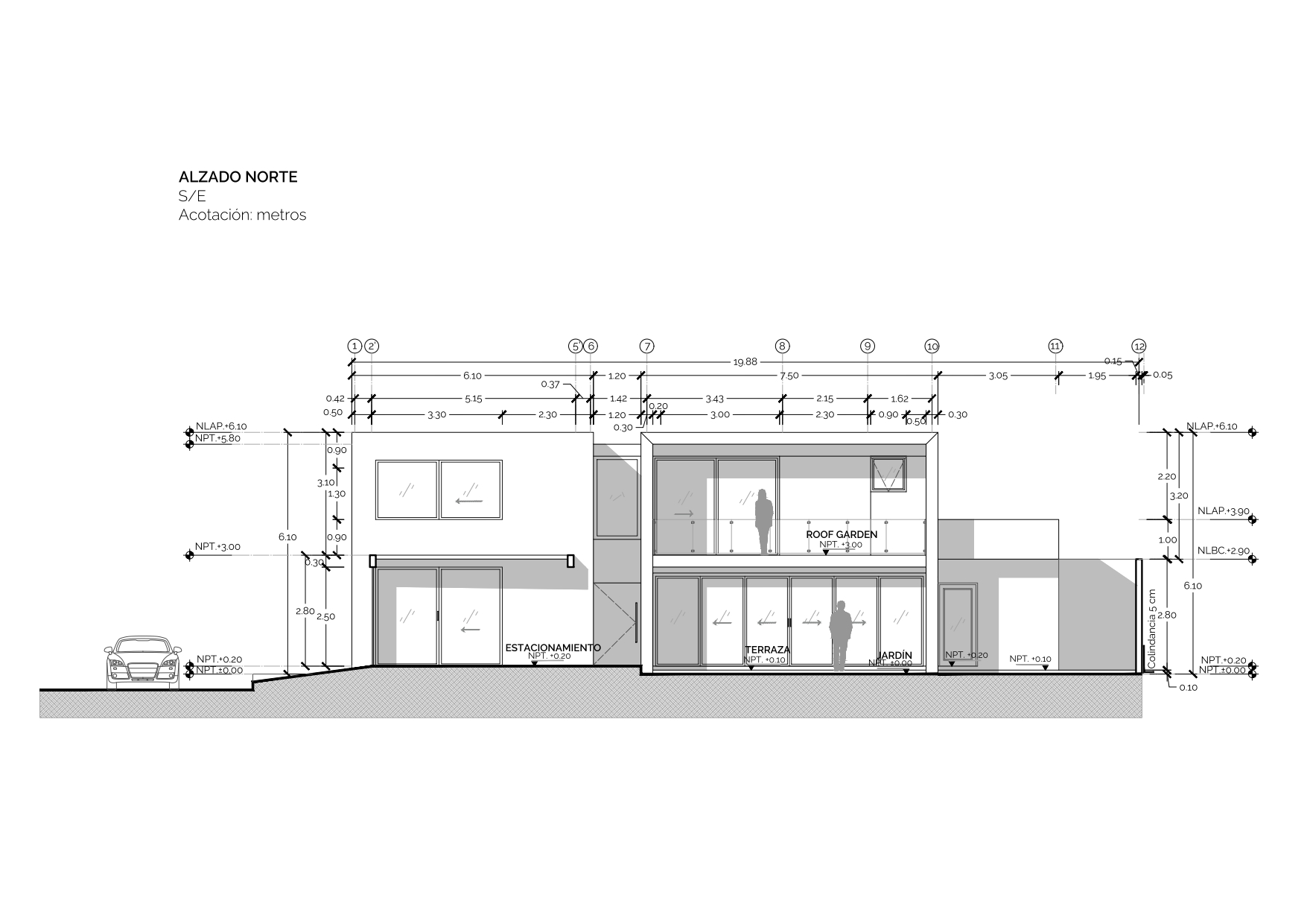
Galería del proyecto






