Casa Camila
2024
San Pablo Etla, Oaxaca.
En las faldas de las montañas de San Pablo Etla, al norte de la Ciudad de Oaxaca, México, se emplaza Casa Camila, una vivienda contemporánea que refleja la vida de una familia joven con una hija pequeña, buscando una combinación de calidez y funcionalidad, donde se destaca un volumen principal de ladrillo rojo cuidadosamente elegido.
La experiencia de vivir en Casa Camila es una combinación entre estar un fin de semana en una casa de campo, con la calidez y serenidad que ello implica, y las comodidades que solo una casa en la ciudad puede ofrecer.
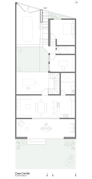
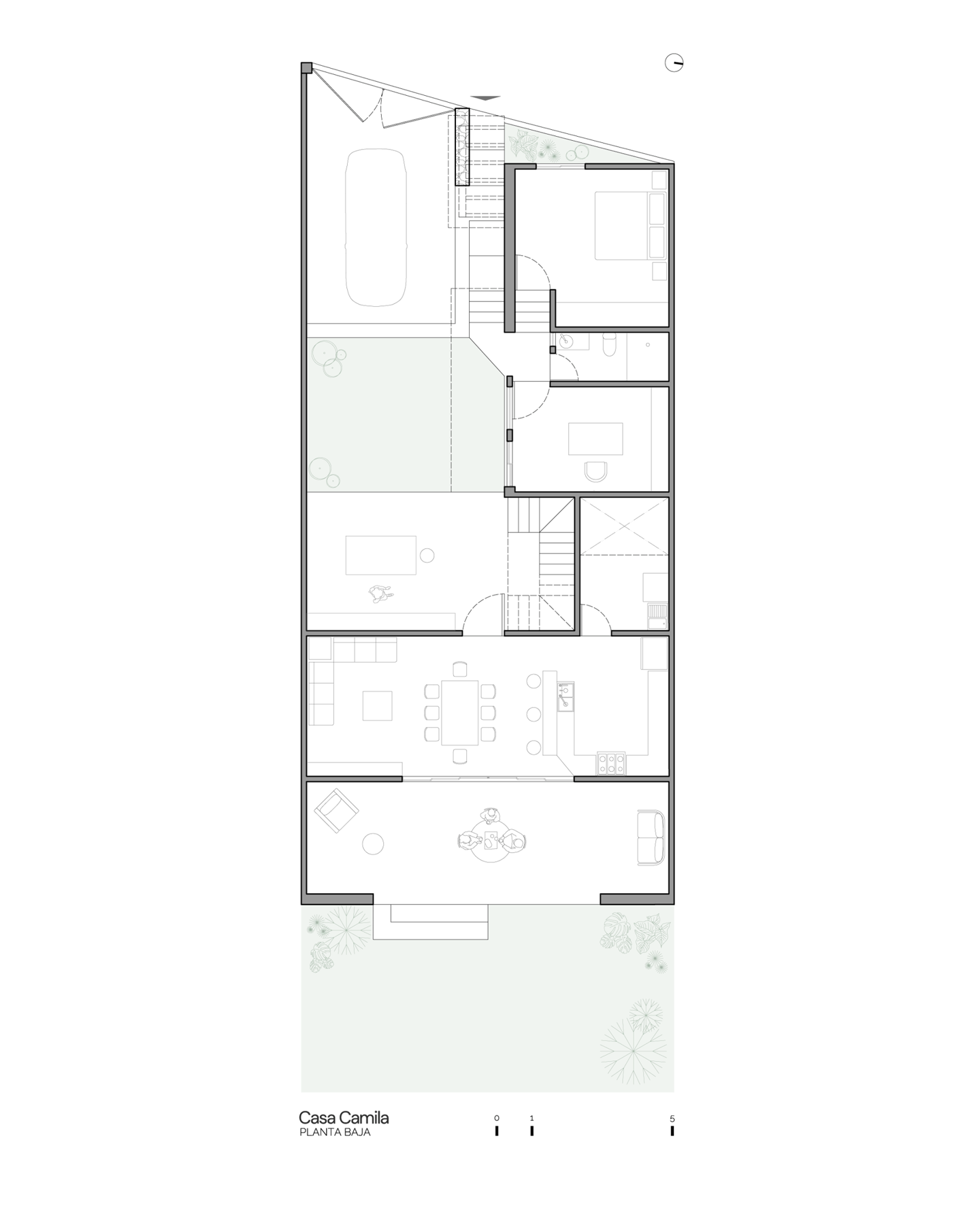
En la planta baja, los espacios son abiertos y conectados: una sala de estar luminosa, un comedor acogedor, y una cocina moderna que actúa como el corazón del hogar. Asimismo, se cuenta con una terraza que posee una vista panorámica privilegiada hacia las montañas de San Pablo Etla.


Galería del proyecto










